このページを印刷する
- 価格
-
2,390万円
- 間取
-
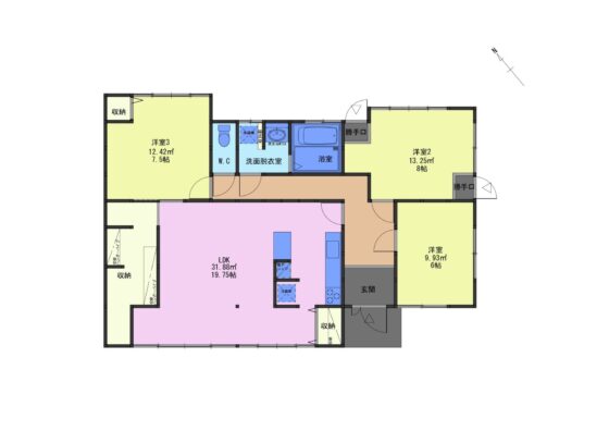
2LDK
| 所在地 | 愛知県豊田市石畳町坂下 |
|---|---|
| 交通 |
|
| 築年月 | 1985年3月(築41年2ヶ月) | 新築/中古 | 中古 |
|---|---|---|---|
| 面積 | 95.47m²(28.87坪) | 計測方式 | 壁芯 |
| バルコニー | 向き | ||
| 建物階数 | 地上1階 | 部屋階数 | |
| 建物構造 | 木造 | ||
| 敷地全体面積 | 746.00m²(225.66坪) | 延べ床面積 | 95.47m²(28.87坪) |
| 建築面積 | 95.47m²(28.87坪) | ||
| 間取内容 | |||
| 駐車場 | 取引態様 | ||
| 引渡/入居時期 | 即時 | 現況 | 空家 |
| 地目 | 宅地 | 用途地域 | 無指定 |
| 都市計画 | 市街化調整区域 | 地勢 | ひな段 |
| 土地面積 | 土地面積計測方式 | 公簿 | |
| セットバック | 無 | セットバック量 | |
| 建ぺい率 | 60% | 容積率 | 200% |
| 土地権利 | 所有権 | 接道状況 | 三方 |
| 国土法届出 | 不要 | ||
| 周辺環境 | |||
| 設備・条件 |
|
||
| 自社物 | 自社物 | 状態 | 売出中 |
| 物件番号 | 6769 | ||
| 情報登録日 | 2026年3月20日 | 情報更新日 | 2026年3月20日 |
豊田市中心部から車で約30分。鳥の声が届く静かな住宅街にありながら、746㎡のゆとりある敷地が、家族の暮らしに大きな自由をもたらす住まいです。
ひな壇型の地勢の上部に位置するため、陽当たり・眺望・開放感に恵まれ、朝は明るい光の中で一日を始められます。
広い庭では子どもがのびのび遊べ、休日には外遊びや食事、ちょっとしたプール遊びまで自然に楽しめそうです。
内装は近代的な間取りへ改修され、仕上げも一新。キッチンや浴室などの水回りも新品交換済みなので、入居後すぐに快適な新生活を始められます。
駐車は10台以上可能で、ご夫婦それぞれの車はもちろん、親族や友人が集まる日にも安心。静けさ、広さ、暮らしやすさがそろい、子育ての時間をのびやかに包み込んでくれる一邸です。
広い敷地があることで、洗濯物や布団を気持ちよく干せる余白が生まれ、来客時も駐車計画に追われにくいのも魅力。
室内外のゆとりが、忙しい毎日に安心と伸びやかさを与えてくれます。家族の成長に合わせて使い方を広げやすい点も、この住まいならではの頼もしい強みです。
物件掲載内容と現況に相違がある場合は現況を優先といたします。
物件動画
物件周辺マップ
Loading...
ご注意
- 物件によっては正確な位置を示していない場合がございます。
- 現況が表示された内容と異なる場合は現況優先といたします。
- 表示されてる地図はGoogle社より提供されてるデータに基づいたものであり、表示内容についての責任は負いかねます。





























